Stuart

Προσφέρουµε υπηρεσίες πλήρους κτιριακής αναβάθµισης στους πελάτες µας. Στόχος µας είναι, η ακίνητη περιουσία σας να αποκτήσει ξεχωριστή αξία για εσάς και την ποιότητα ζωής.

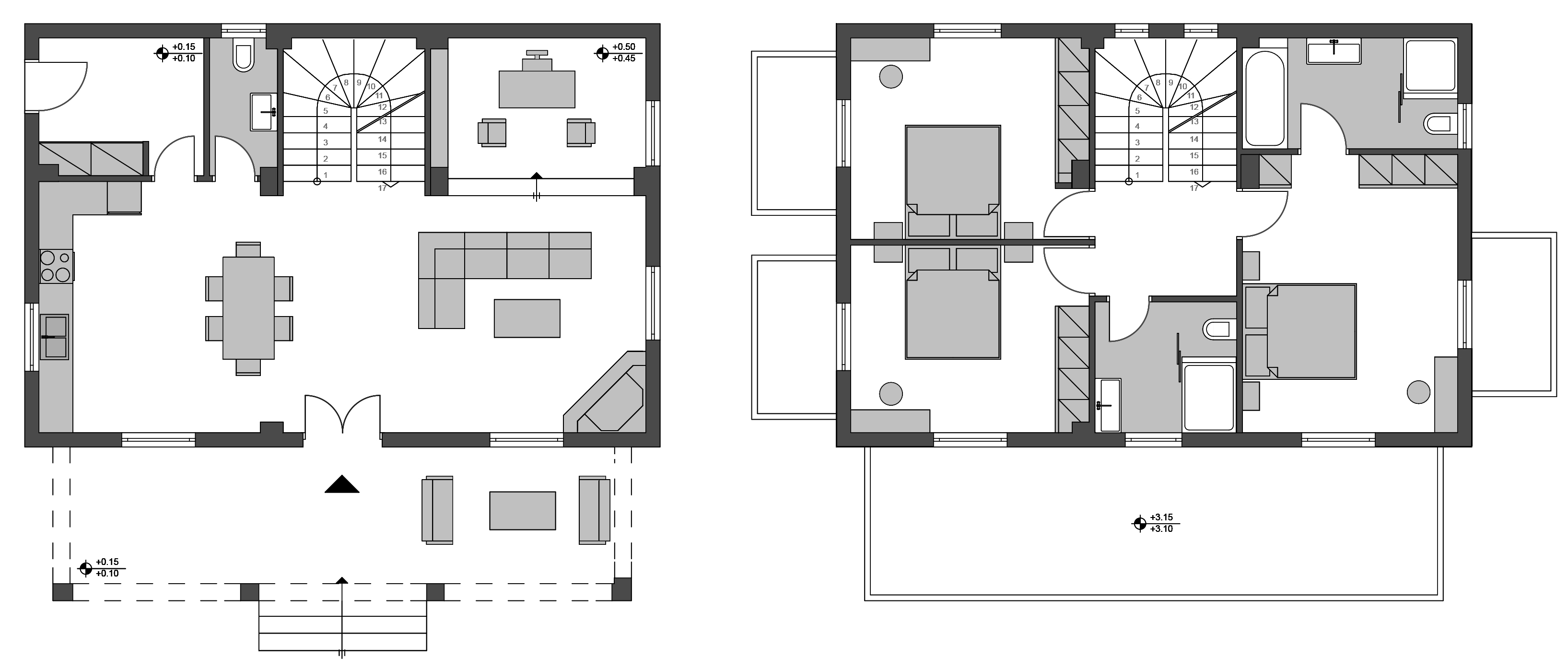
Κάτοψη