Κριθαράκι

Περιγραφή Ακινήτου

 

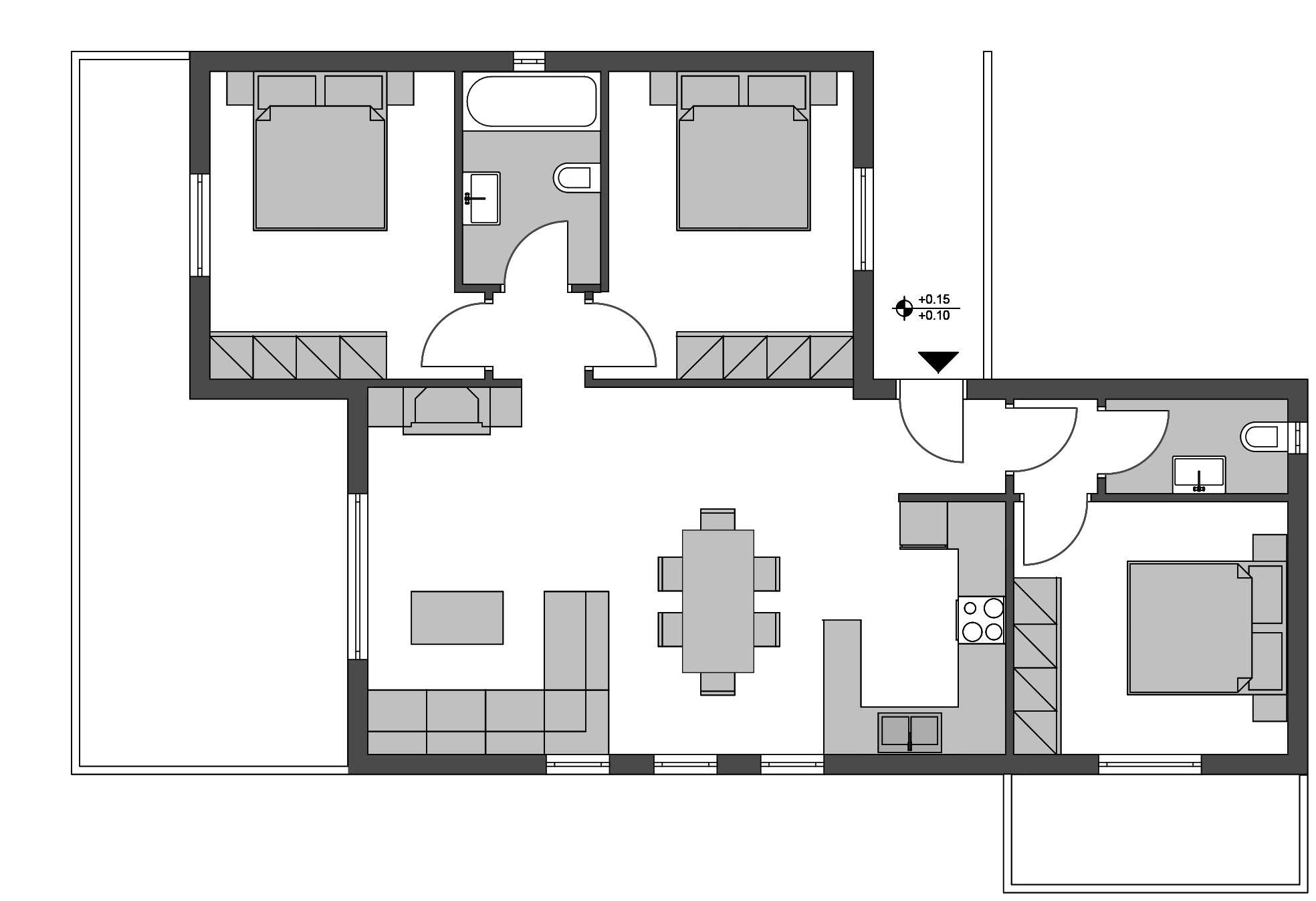
Κάτοψη